Precision Property Measurement

Stop guessing, start listing.

Get ANSI-compliant GLA reports and professional sketches from the experts who know property measuring best. 

What Is Included?

Square footage discrepancies are one of the leading causes of deal fallout, appraisal gaps, and legal disputes. Whether you are a Realtor setting a list price, a homeowner questioning your tax assessment, or a builder verifying a floor plan—the wrong number could cost you money. 

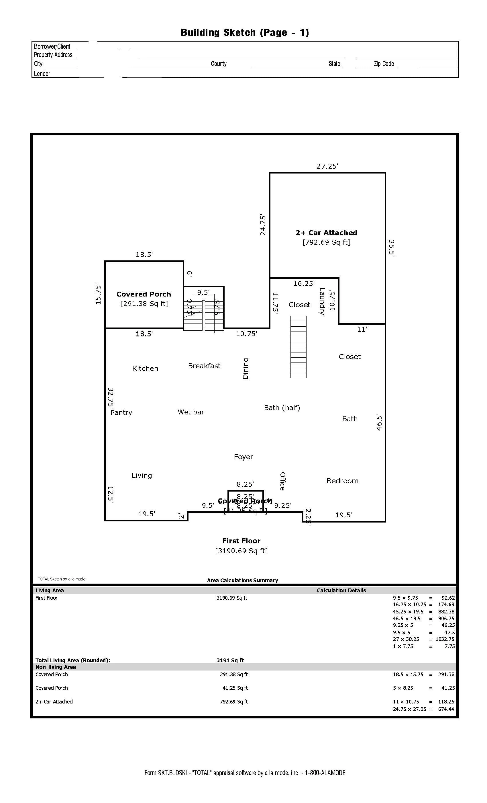
  • A high-quality digital floor plan showing the perimeter and room layout. 

    *This service provides an exterior building sketch and total square footage. Interior room-by-room measurements are not part of the scope.

  • Accurate, above-grade square footage calculated to ANSI standards by an appraiser.  This is the number that you will see reflected in an appraisal. It does not include below-grade square footage.

  • Clear separation of Total Basement Area vs. Finished Basement Area—crucial for accurate pricing calculations. 

  • A comprehensive, quantitative look at the entire footprint, including garages or porches. 

Why use

D.S. Murphy?

  • Ready to take the next step?